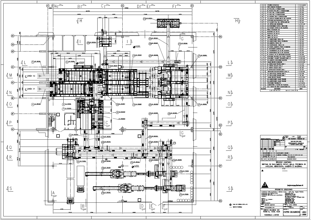
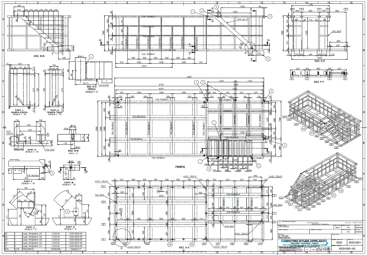
Carpenteria metallica
Le strutture in metallo vengono utilizzate per costruzioni leggere.
Come le coperture di centri sportivi, edifici residenziali, centri commerciali, nelle parti superiori dove occorrono strutture agili con tempi di realizzazione veloci. Flessibilità ed efficienza produttiva, sono il nostro diktat in tutte le fasi del progetto.
